Atualmente, a maioria dos proprietários de casas particulares possui aquecimento a gás. No entanto, muitas vezes surgem situações em que não é possível conectar ao tubo de gás central. Então, caldeiras de combustível sólido e dispositivos de aquecimento potentes e confiáveis vêm em seu socorro. Você pode aquecer com lenha ou carvão tanto em uma casa particular quanto no campo. Com um custo, este tipo de aquecimento será mais caro em comparação com o aquecimento a gás. Em termos de seus parâmetros técnicos e capacidade de fabricação, os modelos modernos de dispositivos de aquecimento de combustível sólido praticamente não são inferiores a outros tipos de equipamentos de caldeiras.
Graças às tecnologias modernas, os fabricantes conseguiram atingir uma duração significativa do processo de combustão em unidades de combustível sólido. Uma caldeira de aquecimento de combustível sólido de longa duração é, de longe, o tipo de equipamento de caldeira mais econômico e eficiente. Os líderes indiscutíveis nesta classe são as caldeiras de aquecimento do tipo eixo de combustível sólido. Esse equipamento tem um design simples, então muitas vezes há casos em que eles tentam fazer uma caldeira de mina por conta própria.
Caldeira de Kholmov
Esta modificação do forno difere por estar equipado com duas câmaras - para a instalação de um trocador de calor e separadamente para a queima de combustível. Esses dispositivos com combustão de fundo e altura total da fornalha, que se tornou o nome para eles. O princípio de operação depende do projeto.
Os mais populares hoje são dois designs:
- Caldeiras de pirólise Kholmov (PC);
- combustão normal.
O combustível queima no fundo da câmara de combustão fechada. O segundo poço é menor, serve para a pós-combustão dos gases de combustão e para resfriá-los na caldeira para aquecimento de água para aquecimento.
Dispositivos não voláteis controlam a temperatura com um termostato RT3 instalado na frente da estrutura. Para completar a combustão do combustível, o suprimento de ar é regulado pela porta de sopro localizada na porta principal do cinzeiro.

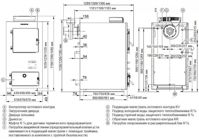
Caldeira de Kholmov. Vista superior e lateral
Um obturador de restrição especial é instalado para garantir a passagem de ar mínima. Na parte superior traseira do móvel existe um ramal para ligação a uma chaminé que proporciona tiragem natural.
A caldeira está equipada com uma válvula de corte e compensadores no exterior e no interior da caixa, concebidos para evitar o rebentamento das costuras de soldadura durante o sobreaquecimento de emergência.
Como determinar a eficiência de uma caldeira


Após a instalação, a caldeira deve ser testada. Para fazer isso, encha a fornalha com porção pesada de lenha seca homogênea, o sistema de aquecimento está conectado.
Três parâmetros são medidos: volume de água, temperatura inicial, temperatura final, duração da queima. Com base nesses dados, a quantidade de energia transferida para o refrigerante é calculada.
O valor resultante é comparado com o valor calorífico do combustível. Se os números forem diferentes em 20% - o sistema funciona "perfeitamente".
Princípio de funcionamento da caldeira
O processo de geração de calor ocorre de duas maneiras: combustão direta do combustível natural e pós-combustão de uma mistura de gases de pirólise formada por falta de ar. Parte do combustível arde, liberando alcatrão e fumaça de fuligem. Além disso, os gases migram através do carvão, saturados com componentes combustíveis, e se transformam em uma mistura gás-combustível.
Essas unidades são do tipo de minas - com combustão de fundo. O processo é realizado no nível de 20,0 cm na zona inferior do espaço do forno. O combustível superior espera na reserva quente enquanto o inferior é queimado. Os gases de combustão se acumulam cerca de 30,0 cm acima do combustível.


O volume principal do ar primário cai sob a grelha e se move para a parte do pós-combustor de pirólise. Ele captura gases de combustão acima do nível de combustão.
As minas são separadas por uma divisória com uma pequena fenda na parte inferior, através da qual a chama é puxada por impulso da primeira câmara para a outra, onde se completa a pós-combustão dos gases combustíveis, lavando o trocador de calor de convecção de T +850 C.
O circuito de aquecimento na camisa de água da caldeira tipo mina é submetido a aquecimento por radiação, o calor residual é transferido para o trocador de calor tipo convecção.
Unidade de aquecimento
O primeiro passo para fazer uma caldeira de mina é montar a caixa da fornalha. É feito de peças de metal com espessura de 4 mm. Eles precisam ser pregados por soldagem. Vale a pena começar por baixo, onde serão fixadas as partes laterais, a tampa da abóbada e os orifícios para as portas. Deve ser parecido com a foto:


Paredes de soldagem
Você precisa seguir o desenho. A folha inferior deve ser estendida em cada direção. Também servirá como parte inferior das portas do compartimento das cinzas. Na câmara, será necessário fixar as prateleiras por meio de soldagem. Os cantos foram indicados nos materiais. Haverá uma grade. Após a soldagem, é importante verificar se há vazamentos em cada compartimento, fervendo cuidadosamente todas as juntas.


Paredes de soldagem
Em seguida, você precisa inserir uma camada de água. Material - metal de 3 mm. Sua espessura nas paredes laterais deve ser de 2 cm, portanto uma tira de aço é soldada à fornalha, produzida por 20 mm. Você precisa agarrar as folhas de aço às paredes - revestimento.


Paredes do tanque
É importante levar em consideração que a demão de água deve originar-se ao nível da grelha. Não deve passar por cima do compartimento das cinzas.
Além disso, como você pode ver na foto, você precisa instalar os clipes em um padrão quadriculado. Deve ser soldado a topo à fornalha com uma extremidade, e a outra deve ser soldada em torno do orifício.


A partir da foto, você pode determinar onde colocar a parte inferior da capa de água.
Em seguida, são instalados os tubos pelos quais o calor escapará. Eles são colocados na parte superior do tanque da caldeira da mina. Conforme mostrado no desenho, os orifícios devem ser feitos na parte traseira e frontal onde esses tubos serão colocados. Suas pontas devem ser bem escaldadas, como o resto das juntas da capa d'água.


Esses tubos devem divergir na forma de um ventilador.
A próxima etapa é a instalação das portas e grade. É necessário soldar uma tira em 2 carreiras à porta na parte interior. Um cordão de amianto é inserido entre as peças, o que vai selar a varanda. O canto externo da grade deve ser soldado para baixo. Isso dissipará o ar que é soprado no compartimento das cinzas pelo ventilador.


Grato
Depois de concluir todas as atividades, você precisa cortar os acessórios nas paredes da caldeira da mina. Eles serão unidos por dutos: abastecimento e retorno. O duto de ar deve entrar no compartimento de cinzas próximo ao meio da parede traseira. Ele está localizado logo abaixo do casaco de água.


Instalação de dutos
Em seguida, é necessário soldar as dobradiças da porta e as partes embutidas que ajudarão na instalação do acabamento decorativo.


Dobradiças
O tanque da caldeira de longa duração deve ser revestido com isolamento em cada lado. Você pode consertar com um cabo. Resta pouco: aparafuse as chapas de metal perfeitas aos detalhes e coloque a porta.


Não há necessidade de usar lã de vidro ou outros materiais. O isolamento de basalto faz bem o seu trabalho.
Um ventilador deve ser conectado ao flange do duto de ar e a unidade de controle adquirida deve ser instalada. O sensor de temperatura deve estar localizado sob o isolamento de basalto próximo à parte traseira da unidade. É possível instalar unidades adicionais na caldeira, também chamadas de "bragman", que serão úteis:
- Um tanque de água adicional pode ser instalado onde a água será aquecida.
- Em caso de corte de energia, pode ser instalado um poço de imersão para termômetro.
- Coloque um elemento de aquecimento que possa aquecer a água depois que a lenha tiver queimado completamente.
As pernas do conjunto são soldadas em qualquer etapa da obra. Para isso, são utilizadas peças de metal adequadas. Abaixo estão os diagramas da caldeira da mina.
Vantagens e desvantagens
A unidade de mina tem as seguintes vantagens principais:
- Versatilidade, disponibilidade de trabalho em diferentes tipos de combustível, inclusive líquido para instalações modificadas.
- Elevada eficiência, produtividade e autonomia da caldeira sem carregamento adicional de combustível até 24 horas.
- Design inteligente para fácil manutenção, o carregamento / descarregamento é feito por meio de escotilhas separadas.
- Confiabilidade e segurança, portanto, contaminação das instalações por gás e intoxicação por monóxido de carbono, pode-se dizer, são reduzidas a "zero".
As desvantagens incluem:
- aumento da formação de fuligem e formação de alcatrão durante a combustão de combustível;
- grandes dimensões da instalação.
Recomendações e experiência operacional
Muitas pessoas acreditam erroneamente que se você aumentar a área ou o número de trocadores de calor dentro da câmara, isso aumentará a eficiência da caldeira. Na verdade, a maior quantidade de calor é obtida justamente na parte da radiação - cerca de 60-70%.
Recomenda-se colocar lenha ao longo da grelha, e não transversalmente, para garantir uma combustão melhor e mais uniforme do combustível. A caldeira é carregada completamente a cada 12-16 horas ou fechada periodicamente. As cinzas devem ser limpas uma vez a cada 2 dias. O trocador de calor é limpo uma vez a cada meio mês.
A caldeira de Kholmov está ganhando temperatura rapidamente. Quando totalmente carregado, atinge temperaturas extremamente altas em apenas 20 minutos. Para 1 hora de aquecimento, são necessários 3 kg de briquetes. Quando totalmente carregado com este combustível, ele aquece por cerca de 13 horas, a bétula seca (36 kg) queima por até 9 horas. Em alguns casos, a caldeira não conseguia funcionar na entressafra, quando a temperatura de alimentação era exigida até 50 °, bem como no modo mínimo. O próprio Holmov aconselha evitar o uso do regime latente.
No primeiro arranque é obrigatório o ensaio de pressão da caldeira a 1,5 atm de pressão com ar, tendo previamente revestido as costuras com água e sabão.
Recomenda-se comprar uma caldeira Kholmov apenas de um fabricante confiável e sujeito a um contrato.
Produção de uma caldeira de pirólise de mina
Os PCs modificados têm grande demanda hoje, com alta eficiência, permitindo que você economize uma quantidade significativa de combustível e funcione com um único abastecimento por mais de um dia. A simplicidade do design torna possível fabricar uma caldeira mesmo com um pouco de experiência em soldagem.


Desenho de uma caldeira de pirólise comum
A base para criar uma caldeira Kholmov eficaz com suas próprias mãos será a documentação confiável do projeto: desenhos, especificações e cálculos, que podem ser encontrados na Internet hoje.
Ao escolher o desenho desejado da unidade, eles prestam atenção ao volume de carga do dispositivo, quanto maior, mais longo será o trabalho e de que depende a potência do gerador de calor.


Algoritmo para criar uma caldeira com as próprias mãos.
- Eles realizam a parte principal do aparelho e o dividem em duas câmaras, instalando divisórias e válvulas para alimentação de ar.
- Um diagrama de peças é transferido para uma folha de metal e recortado por autógeno.
- Os elementos laterais são soldados com uma costura reforçada.
- 2 orifícios são cortados entre a caldeira e a fornalha na partição - na parte superior e inferior perto da grelha.
- Instale os detalhes da fornalha e escalde-os.
- Prenda a trava no orifício superior e prenda-a.
- As grelhas são feitas com corte de estreitas ranhuras longitudinais.
- As grelhas são colocadas em cantos de metal (ferro fundido) ou soldados (aço).
- As portas da fornalha e do cinzeiro são feitas.
- Uma caldeira é instalada e soldada a partir de tubos de 25 mm com camisa de água.
- Equipe a câmara de pós-combustão da mistura de fumaça-gás soldando uma divisória ao lado da grelha.
- Um orifício é feito na parte inferior para a instalação de um tubo de ar de 50 mm com um amortecedor cego na extremidade de saída e vários orifícios para criar um fluxo de ar uniforme.
- A câmara de combustão é isolada com chamotte e, em seguida, é adicionalmente isolada com lã de basalto, o que aumenta a eficiência térmica da unidade de caldeira.
- Em seguida, são instalados os equipamentos fabricados, a tubulação das vias de água e fumaça e gás, a instalação de aquecimento e, em seguida, o teste de pressão do sistema.
Maneiras de implementar a queima de longo prazo
O principal problema que assola os usuários de caldeiras a lenha é a falta de queima de longa duração. Temos que jogar regularmente novas porções de lenha em seus fornos. E se durante o dia ainda é possível chegar a um acordo com isso, à noite o problema é agravado - se você não prestar a devida atenção ao equipamento, o combustível vai acabar. Dentro de uma hora após a deterioração, a temperatura nos quartos começará a cair.
Este problema pode ser resolvido de uma forma bastante interessante - construir um aquecedor elétrico (TEN) na caldeira a lenha. Não vamos conseguir queimar muito aqui, mas o elemento de aquecimento será capaz de manter uma determinada temperatura no circuito, fornecendo calor aos usuários. É verdade que essa abordagem está repleta de alto consumo de energia - em um mês ela pode "queimar" até vários milhares de rublos, dependendo da área da casa própria e da capacidade do próprio elemento de aquecimento.
Caldeiras de combustível sólido para longa queima, funcionando com madeira e carvão, resolvem completamente o problema com o carregamento frequente de combustível. Alguns deles podem queimar por vários dias, proporcionando calor aos consumidores. A queima de longo prazo é realizada de várias maneiras:
- Um aumento no volume da câmara de combustão várias vezes;
- Usando o esquema de combustão de pirólise;
- Automatizando parcialmente o fornecimento de combustível.
Vamos ver o que a aplicação de certas técnicas nos proporcionará.
Melhores caldeiras de mina
Os SCs do tipo pirólise são muito procurados hoje pela população que mora em casas de um e dois andares, uma vez que comprovaram sua eficácia e demonstraram facilidade de uso.


O mercado reagiu rapidamente aos pedidos dos compradores e foi preenchido com uma grande variedade de unidades de fabricantes nacionais e estrangeiros.
Nas avaliações de compras online em 2020, a maior demanda é por unidades com uma vida útil de mais de 20 anos e superfícies de aquecimento inovadoras.
Principais características das caldeiras de mina.
| Indicadores | Pirólise 43 Kp-10 | Heiztechnik (12 kW | Wirbel ECO CK Plus 25 |
| Preço | RUB 67100 | RUB 215760 | RUB 277 845 |
| Modelo | 66694 | 90128 | 80023 |
| Fabricante | Pirólise 43 | Heiztechnik | Wirbel |
| Pequena descrição | A duração do trabalho em 1 guia é de até 10 horas. Eficiência de 85% a 90%. Intensidade de energia, baixo consumo de combustível Manutenção automática da temperatura de aquecimento. | Potência 12 kW, nova UE, tecnologia inovadora. Instalação de aquecimento ecologicamente correta com um queimador de auto-ignição aprimorado e um sistema de autolimpeza. Eficiência - 91%, temperatura de aquecimento - 85 C. | Unidade universal para combustíveis líquidos e sólidos. A faixa do meio aquecido é 40/90 C, a eficiência para combustível sólido é de 85%, para combustível líquido - 90% |
| Potência, kWt: | 10 | 12 | 25 |
| Peso, kg | 210 | 350 | 271 |
| Dimensões (HxWxP), mm | 1070x500x800 | 1370x1150x550 | 1260 x 915 x 1070 |
| Diâmetro da chaminé, mm | 160 | 150 | 160 |
| O país de fabricação | Rússia | Polônia | Alemanha |
Assim, resumindo a linha, pode-se argumentar que as caldeiras do tipo eixo são dispositivos eficientes com baixo consumo específico de combustível. Essas unidades são hoje utilizadas para aquecimento individual de residências e públicas, reduzindo significativamente os custos de aquecimento dos proprietários.






















