Cjevovodi plinskog kotla u sustavu grijanja
Nakon postavljanja zidnog plinskog kotla i postavljanja grijača na zid, prvi korak je spajanje na sustav grijanja. Ovisno o tome koji je model instaliran jednokružni ili dvokružni, postoje različite sheme vezivanja. Postupak spajanja razmotrit ćemo na primjeru zidnog plinskog kotla s dvostrukim krugom.

Kao što znate, dvokružni kotao, osim grijanja, može proizvoditi i toplu vodu za potrebe kućanstva. Strukturno se to ostvaruje ugradnjom jednog bithermalnog ili dva odvojena izmjenjivača topline. Dvokružni kotao ne proizvodi jako puno tople vode, ali sasvim je dovoljan za 1-2 točke razvoda (na primjer, kuhinjska slavina i tuš).
Suvremeni plinski kotao na šarkama vrlo je kompaktan i već u sebi sadrži glavne elemente potrebne za funkcioniranje sustava grijanja s prisilnom cirkulacijom, kao što su: cirkulacijska pumpa, ekspanzijski spremnik, sigurnosna skupina. U sustavima grijanja malih privatnih ladanjskih kuća to je više nego dovoljno, ali ako je potrebno, možete instalirati dodatni ekspanzijski spremnik ili drugu pumpu.
Na dnu bilo kojeg zglobnog dvokružnog kotla nalazi se 5 mlaznica. Oni su povezani s: dovodnim i povratnim vodovima sustava grijanja, opskrbom i povratom opskrbe toplom vodom, glavnim plinom. Ulaz za plin obično je centriran i obojan u žuto. Svi ostali vodovi mogu se rasporediti u bilo kojem redoslijedu, ovisno o modelu plinskog kotla. Zbog toga je potrebno prije početka vezivanja pojasniti svrhu svakog od njih u uputama za uporabu.


Cjevovodi zidnog plinskog kotla izvode se polipropilenskim ili metalnim cijevima. Presjek cijevi za grijanje obično je veći od cijevi za PTV 3/4, odnosno 1/2 inča. Sustav grijanja povezan je s kotlom preko "američkih" matica. Kuglasti ventili ugrađeni su na svaku liniju, radi praktičnosti demontaže plinskog kotla bez ispuštanja rashladne tekućine i po potrebi za izolaciju kotla od sustava grijanja. Da bi se osigurala nepropusnost, svi se spojevi moraju izvesti vodovodnom FUM trakom ili lanom.
Grubi filtri moraju biti ugrađeni u povratni vod grijanja i u dovodni vod PTV-a. Radi praktičnosti ispiranja i čišćenja, oni su također odsječeni zapornim ventilima. Često se, kako bi se produžio vijek trajanja sekundarnog izmjenjivača topline dvokružnog kotla, na dovod tople vode dodatno ugrađuje magnetski filtar za finoću.
Takvi različiti plinski kotlovi
Kupac, prije odlaska u trgovinu kako bi kupio plinski kotao za grijanje, mora sam odrediti nekoliko karakteristika opreme. Prvo što treba zapamtiti je da su svi kotlovi podijeljeni u dvije vrste:
Kupnja prvog bit će malo jeftinija, ali druga vrsta plinskih kotlova smatra se univerzalnom i ne može služiti samo kao uređaj za grijanje, već i osigurati kućište vrućom vodom.
Još jedan važan detalj koji treba zapamtiti pri odabiru jeftinog kotla za grijanje na plin je način uklanjanja proizvoda izgaranja. Mogu ih biti dvije: s atmosferskim (potreban je dimnjak) ili prisilnim (opremljenim posebnim dizajnom za uklanjanje proizvoda izgaranja) propuhom.
Sljedeća vrlo važna podjela kotlova u katalozima je u pogledu energetske učinkovitosti. U prodaji:
- Konvekcija (takav plinski kotao za grijanje nalazi se u mnogim kućama, zbog njegove dostupnosti i dobre učinkovitosti);
- Kondenzacija (očigledan lider u proizvodnji, budući da vam kompetentna montaža omogućuje povećanje učinkovitosti do 109%. Ova vrsta opreme smatra se najisplativijom).
Kakvu ćete opremu odabrati još ovisi o vama: moćna podna ili lijepa, ali ne manje učinkovita, montirana na zid. U našoj internetskoj trgovini pronaći ćete plinske kotlove različitih proizvođača.
Kakav plinski kotao?
Ako će se u vašoj kući toplinska energija koju proizvodi plinski kotao trošiti samo za grijanje i grijanje vode, možete sigurno uzeti snagu kotla jednaku toplinskom gubitku kuće (za preliminarne pojednostavljene izračune koristite ovu ovisnost - za svakih 10 m2 grijane površine potreban vam je 1 kW snage kotla).
Sve o ugradnji plinskog kotla
Cilj našeg rada je integrirani pristup pružanju pouzdanog sustava grijanja. Možemo vam ponuditi profesionalni odabir opreme i komponenata koji udovoljavaju vašim uvjetima rada kotlovnice, brzu ugradnju kotlova i puštanje u rad sustava opskrbe toplinom po sistemu ključ u ruke.
Popravak kotlovske opreme
Pružamo jamstveno i servisno održavanje opreme za grijanje, popravak i zamjenu dijelova kotla. Vlastiti odjel za servis, točna dijagnostika i brzo rješavanje problema. Možete sklopiti ugovor o godišnjem, sezonskom ili jednokratnom održavanju opreme za grijanje.
Električni priključak plinskog uređaja
Postoje moderni plinski kotlovi s dvije mogućnosti za spajanje na električnu mrežu: trožilni izolirani kabel i utikač za spajanje na utičnicu. U oba slučaja trebali biste se pridržavati pravila: plinski uređaj povezan je preko pojedinačnog prekidača na štit i zasigurno ćete morati voditi računa o uzemljenju. Preporučuje se uporaba regulatora napona kao i suvišnih izvora napajanja za pripremu nestanka struje.
U blizini kotla mora se instalirati uređaj za automatsko isključivanje kako bi se mogao brzo i lako isključiti. Uređaj nemojte uzemljivati na cijevi za grijanje ili plin. Da bi se osiguralo dobro uzemljenje, potrebno je opremiti petlju uzemljenja ili točkovno uzemljenje.
Pravila i propisi za ugradnju kotla
Oprema za plinsko grijanje postavlja se u skladu s razvijenim i odobrenim tehnologijama koje osiguravaju sigurnost njezinog rada.
- Pitanje kako instalirati zidni kotao započinje pripremom prostorije za njega. Soba mora udovoljavati određenim zahtjevima: kotlovnica se može nalaziti bilo gdje u kući, osim kupaonice, dnevnih boravaka i WC-a. Međutim, prilikom ugradnje zidnih jedinica ovaj se zahtjev može ublažiti, ovisno o vrsti kotla. Volumen prostorije je od četiri četvorna metra, visina stropa je od dva metra. Širina vrata je najmanje 800 mm. Također, prostorija treba imati prirodno osvjetljenje kotla kroz prozor. Istodobno, veličina prozora mora odgovarati 0,3 kvadratnih metara. za svakih 10 kvadrata prostorijama.
- Pravila za ugradnju zidnog plinskog kotla reguliraju dovod određene količine svježeg zraka uz pomoć prisilne ventilacije do mjesta upotrebe kotla. Nedovoljna količina dolaznog zraka može biti povezana s nakupljanjem tvari opasne za zdravlje i život u sobi.
- Ugradnja zidnog plinskog kotla: standardi za njegovo postavljanje su takvi da udaljenost od zida do površine kotla mora biti veća od 10 cm. Ako je ta udaljenost manja od propisane udaljenosti, zid mora biti zaštićen s vatrootpornim premazom.
- Plinske cijevi mogu biti metalne, ali ne i plastične.
- Otvor dimnjaka mora odgovarati izlazu kotla. Štoviše, njegova visina trebala bi biti najmanje 5 m, pod uvjetom da je dimnjak postavljen iznad grebena na krovu kuće. Prilikom ugradnje dimnjaka, on ne može imati više od tri zavoja.
- Prilikom organiziranja sustava napajanja potrebno je osigurati prisutnost automatskog stroja s trenutnom i toplinskom zaštitom.
- U sobi u kojoj će stajati kotao, mora postojati senzor plina povezan s relejem. U slučaju curenja plina, senzor mora poslati relejni signal da blokira dovod plina. Uz to bi se trebao oglasiti zvučni alarm.
- Ugradnja zidnog plinskog kotla, standardi za njegovo pokretanje obvezuju uređaj na plinomjer.
- Ako se pored kotla nalaze i drugi plinski uređaji, tada je razmak između uređaja postavljen na najmanje 20 centimetara.
- Prilikom ugradnje zidnog kotla, zahtjevi utječu čak i na predmet kompletne opreme. Kompletni set kotla mora biti u skladu sa standardima i sadržavati: priručnik, pričvršćivače, predložak od papira za ugradnju, posebne ključeve i pričvršćivače.
- Visina ugradnje zidnog kotla je 80 cm - 160 cm od podne površine.


Ako su svi ti zahtjevi zadovoljeni, tada nema sumnje u pouzdanost i sigurnost požara plinskog sustava grijanja. Treba imati na umu da sustav grijanja moraju redovito održavati zaposlenici gradske plinske službe.


Više o ovoj temi na našoj web stranici:
- Ugradnja plinskog zidnog kotla - cjevovodi i sheme spajanja Često privatne kuće nemaju pristup centraliziranim sustavima, pa vlasnici moraju samostalno odlučiti kako će ih implementirati.
Ispravni cjevovodi zidnog plinskog kotla s dvostrukim krugom - uređaj, dijagram, priključak Ispravna, kompetentna, visokokvalitetna organizacija grijanja kuće pridonosi ravnomjernoj raspodjeli topline u cijelom dnevnom prostoru. Spajanje plinskog zidnog kotla s dva.
Povezivanje zidnog dvokružnog plinskog kotla - fotografije i dijagrami Jednostavno vezivanje zidnog plinskog kotla s dvostrukim krugom, čiju fotografiju vidite na ovoj stranici, može obaviti vaš gospodar, ili možete.
Koaksijalna cijev za plinski zidni kotao - instalacija s fotografijom Da ne biste trošili novac na punopravni dimnjak, trebat će vam koaksijalna cijev za plinski zidni kotao. Instalacija, čija je fotografija objavljena na ovoj.
Spajanje zidnog kotla na električnu mrežu
Većina modernih zidnih plinskih kotlova opremljena je sofisticiranom automatizacijom. Kontrolira mnoge procese, pretvarajući kotao za grijanje u autonomnu mini kotlovnicu, čiji rad praktički ne zahtijeva intervenciju vlasnika. Očito je da upravljačka jedinica i razni senzori trebaju mrežni priključak.
Zidni kotlovi s dvostrukim krugom dostupni su u dvije verzije: s uobičajenom utičnicom i s kabelom za izravno spajanje na automat. U svakom slučaju, moraju se napajati iz mreže putem pojedinog stroja. Ako ste kupili model s utikačem, tada bi se pokraj njega trebao nalaziti pojedinačni izlaz za plinski kotao, ali ne ispod njega. Ovo je jedan od sigurnosnih zahtjeva, tako da se u slučaju curenja rashladne tekućine ne dogodi kratki spoj.


Plinski kotao zahtijeva obvezno uzemljenje. U ove svrhe možete kupiti točkasti komplet za uzemljenje. Instalira se u podrumu ili pored kuće i zauzima malu površinu od oko 0,25 m².
Pažnja! Strogo je zabranjeno uzemljenje zidnog plinskog kotla na radijator grijanja ili dovodnu cijev za plin. Ovo je grubo kršenje pravila za rad plinske opreme i izuzetno je opasno.
Automatizacija kotla vrlo je osjetljiva na kvalitetu opskrbnog napona. S nedovoljnom razinom ili nesavršenim sinusoidnim oblikom na ulazu, uređaji brzo otkazuju.Da biste spriječili česte kvarove i produljili životni vijek jedinice, potrebno je spojiti stabilizatore napona za plinske kotlove. Da biste izbjegli zaustavljanje opreme za grijanje u slučaju nestanka struje, trebali biste dodatno kupiti besprekidno napajanje.
OPĆI ZAHTJEVI ZA UGRADNJU DOMAĆINSKIH KOTLOVA
Važno! Izračunajte područje ventilacije na temelju državnih propisa. Za 10 kW snage kotla potrebno je 0,001 m2.
Važno je znati! 2 vrste plinskih jedinica, na primjer, dva kotla za grijanje, ne mogu se instalirati u istoj sobi.
Posebna pažnja posvećuje se položaju kupke. Dim iz dimnjaka za saunu koji se nalazi u blizini susjedove kuće izaziva svađe sa susjedima, koji zakonski mogu zahtijevati da sruše zgradu.
Na adresu e-pošte koju ste naveli poslana je e-pošta s uputama za oporavak lozinke.
Ako je oprema instalirana snage 150 kW ili više, jedan od preduvjeta je pristup ulici. Može se opremiti drugi izlaz - u pomoćnu prostoriju (koja nije stambena). Ovo bi mogla biti ostava ili hodnik. Vrata moraju biti vatrootporna.
Koordinacija dizajna sustava za pročišćavanje omogućuje vam izbjegavanje situacija kada je septička jama pogrešno izgrađena u blizini, doslovno metar od bunara za pitku vodu. Čistač se postavlja na udaljenosti od najmanje 5 m od stana i 3 m od granica mjesta. Sustav se ne smije nalaziti daleko od stambene zgrade, jer to često dovodi do začepljenja.
Kada planirate buduću upotrebu stranice, preporuča se nacrtati njezin dijagram. Zemljište bi trebalo podijeliti u zone, u jednoj od kojih će se podići stambena zgrada, a u drugima - garaža i druge potrebne gospodarske zgrade. Prema GOST-u, zgrade se moraju ukloniti s ograde i kuće u sljedećim intervalima (m):
- najmanje 1 - gospodarske zgrade za skladištenje inventara;
- 6 - s prozora susjedove kuće;
- najmanje 12 - prostorija za smještaj stoke;
- 6 - ljetni tuš;
- 8 - zahod i jama za kompost.
Ako sumnjate u ispravnu ugradnju utičnice u blizini sudopera, kupite vodonepropusnu utičnicu kao što je prikazano na fotografiji i vaše će sumnje nestati.
Instalacija plinskih kotlova mora se izvesti u podrumu, podrumskoj sobi ili u zasebnoj prostoriji u prizemlju, ako njegova snaga prelazi 150 kW. Po nižim stopama ugradnja opreme za grijanje može se izvesti u kuhinji.
Tehnički uvjeti, kao i projekt ugradnje opreme moraju biti dogovoreni s predstavnikom plinske službe na mjestu uređenja sustava.
Planiranje zgrada uređeno je sljedećim standardima:
- SP 30-102-99. Postavlja norme za udaljenost između IZhS objekata i drugih proširenja. Dakle, stambena zgrada trebala bi se nalaziti na udaljenosti od najmanje 6 m od stanova, garaža i pomoćnih zgrada na susjednom mjestu.
- SP 4.13130.2009. Glavni dokument kojim se uspostavljaju mjere zaštite od požara. Poštivanje zaštitne udaljenosti između zgrada osmišljeno je kako bi zaštitilo zgrade od požara i spriječilo širenje vatre zbog njihove blizine.
- SNiP 30-02-97. Uređuje postavljanje zgrada u hortikulturne udruge. U nekim se slučajevima, odlukom lokalne uprave, standard primjenjuje na objekte individualne stambene izgradnje, privatna domaćinstva i ljetne vikendice.
- SNiP 2.07.01-89. Uređuje područje povezano s općim razvojem naselja. Za razliku od prethodnih standarda, ovaj propis uređuje postavljanje zgrada na mjestu s gledišta lokalnih vlasti, a ne vlasnika.
Tehnički uvjeti, kao i projekt ugradnje opreme moraju biti dogovoreni s predstavnikom plinske službe na mjestu uređenja sustava.
Planiranje zgrada uređeno je sljedećim standardima:
- SP 30-102-99. Postavlja norme za udaljenost između IZhS objekata i drugih proširenja.Dakle, stambena zgrada trebala bi se nalaziti na udaljenosti od najmanje 6 m od stanova, garaža i pomoćnih zgrada na susjednom mjestu.
- SP 4.13130.2009. Glavni dokument kojim se uspostavljaju mjere zaštite od požara. Poštivanje zaštitne udaljenosti između zgrada osmišljeno je kako bi zaštitilo zgrade od požara i spriječilo širenje vatre zbog njihove blizine.
- SNiP 30-02-97. Uređuje postavljanje zgrada u hortikulturne udruge. U nekim se slučajevima, odlukom lokalne uprave, standard primjenjuje na objekte individualne stambene izgradnje, privatna domaćinstva i ljetne vikendice.
- SNiP 2.07.01-89. Uređuje područje povezano s općim razvojem naselja. Za razliku od prethodnih standarda, ovaj propis uređuje postavljanje zgrada na mjestu s gledišta lokalnih vlasti, a ne vlasnika.
Na temelju toga, električno ožičenje u kuhinji treba izvoditi neovisna skupina, a još bolje nekoliko grupa.
Da biste razumjeli kako urediti raspored peći na novi način, trebali biste proučiti zahtjeve za sobu, predstavljene regulatornim dokumentima (SNiP).
Zidovi moraju biti nezapaljivi. To znači da moraju osigurati 0,75 sati prije paljenja (45 minuta).
Detaljno su opisane u uputama za svaki plinski uređaj. Usklađenost s njima jamstvo je ne samo sigurnosti, već i činjenice da će u slučaju kvara opreme korisnik moći računati na besplatnu zamjenu i zasebne jedinice (komponente) i cijele instalacije u određenom roku. Stoga je TU kotla (štednjaka ili druge plinske opreme) jedan od temeljnih dokumenata za postupak ugradnje.
Građevinski standardi, koje država odobrava u vezi s ugradnjom plinske opreme u stambenu zgradu, određuju zahtjeve za sobu u kojoj će se nalaziti kotao. Nužno je to uzeti u obzir prilikom instalacije sustava. Nepoštivanje ovih preporuka može stvoriti požar ili eksploziju.
Kako spojiti plinski kotao s dvostrukim krugom
Dvokružni uređaj razlikuje se od jednokružnog po tome što sadrži 2 izmjenjivača topline: jedan je glavni koji zagrijava vodu za grijanje, a drugi je dodatni koji će zagrijavati vodu za opskrbu toplom vodom. U većini slučajeva takvi su kotlovi postavljeni na zid i predstavljaju visokotehnološku kotlovnicu, u kojoj je sve automatizirano i osigurano.
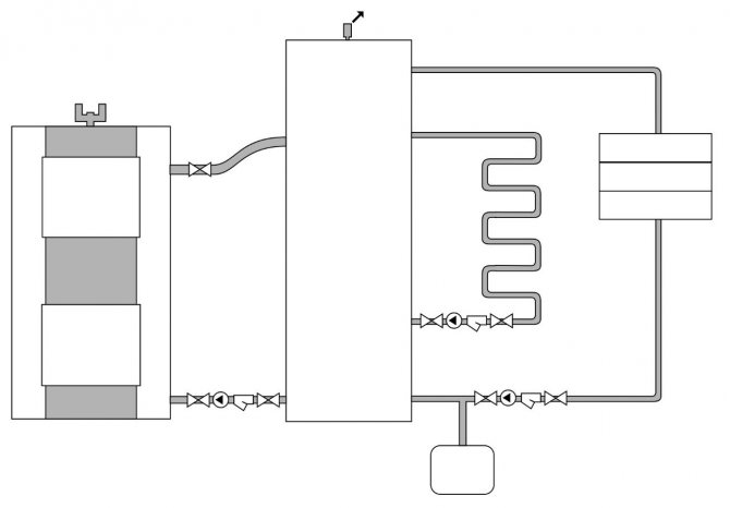
Priključak dvokružnog plinskog kotla.
Trebali biste obratiti pažnju na sliku koja prikazuje unutrašnjost uređaja s dvostrukim krugom. Na njega će biti spojeno 5 cijevi: 1 - cijev s rashladnom tekućinom iz sustava grijanja, koja ide na dodatno grijanje; 2 - cijev s hladnom vodom koja ide do izmjenjivača topline radi zagrijavanja vode za opskrbu toplom vodom; 3 - plinska cijev; 4 - cijev za opskrbu toplom vodom vrućom vodom; 5 - cijev s vrućim nosačem topline za sustav grijanja
Sva automatizacija dvokružnih kotlova uređena je unutra. Zadani medij za grijanje, koji se zagrijava glavnim plamenikom u kotlu, šalje se u sustav grijanja i ohlađenim vraća u kotao. Dakle, postoji kotao-grijanje-kotlovska cirkulacija. Međutim, čim netko otvori slavinu na jednog od potrošača s vrućom vodom, hladna voda počet će teći u bojler kroz cijev. Trosmjerni ventil odmah će preusmjeriti rashladnu tekućinu koja neće napustiti kotao, već će cirkulirati u glavnom izmjenjivaču topline. Nosač topline zagrijavat će dovod tople vode sve dok se više ne koristi. Čim se slavina zatvori, rashladna tekućina počinje cirkulirati kroz sustav grijanja.
Dijagram izravnog spajanja plinskog kotla s dva kruga.
U praksi plinski aparat s dva kruga nije u mogućnosti pružiti veliku količinu vode za opskrbu toplom vodom. Kotao nema vremena da ga zagrije u potrebnom volumenu.Zbog toga se koriste isključivo u malim obiteljima, a kako bi se zagrijala veća količina vode, dodatno se koristi bojler.
Prema ovoj shemi, rashladna tekućina zagrijava samo vodu u kotlu, a sam sustav opskrbe vodom do 2. kruga bit će zatvoren. To omogućuje značajno povećanje trajnosti uređaja s dvostrukim krugom, koji jako pati od zalijepljene tvrde vode.
Dijagram povezivanja plinskog kotla s dva kruga s neizravnim grijačem vode za grijanje.
Nakon otprilike godinu dana, dodatni izmjenjivač PTV-a začepljuje se i ne radi. S tim u vezi, cirkulacija čiste rashladne tekućine u 2. krugu je ekonomičnije rješenje. Međutim, nema smisla koristiti dizajn s dva kruga. Puno je isplativije i praktičnije instalirati u ovom slučaju jednokružni kotao veće snage.
Dopušteno je i povezivanje plinskog zidnog kotla uparenog s običnim električnim kotlom kao spremnika za toplu vodu. U tom slučaju vruća voda ulazi u kotao iz kotla, a kada se njena količina smanji do kritične točke, kotao će ponovno započeti grijanje vode kako bi napunio kotao. Moguća je opcija u kojoj se kotao puni vrućom vodom iz kotla, a njegova daljnja temperatura održavat će se pomoću grijaćeg elementa.
Kako spojiti kotlove različitih vrsta na sustav grijanja?
Često, ako je moguće spojiti na plinovod, mnogi vlasnici kuća instaliraju glavni plinski kotao, a kotao na kruta goriva priključen je kao dodatni izvor topline.
U tom će se slučaju razlikovati i shema povezivanja i zahtjevi za kotlovnicu.
- Glavne razlike odnose se na površinu prostorije - mora biti najmanje 15 m3. Što više snage ima kotao, to treba biti veća kotlovnica (da bi se izračunao ovaj parametar, pokazatelj snage mora se pomnožiti s 0,2 m3, pod uvjetom da strop ima visinu od najmanje 2,5 m).
- Također, soba mora imati otvor za otvaranje veličine 0,45 m2, a ulazna vrata mogu izlaziti samo vani i imati širinu od 80 cm.
Kotlovi na plin i kruta goriva
Ako istodobno planirate koristiti plinsku opremu i kotao na kruta goriva, tada biste trebali obratiti pažnju na brojne značajke:
- sekvencijalna ugradnja krutog goriva, a zatim plinskog kotla. U ovom je slučaju nepovratni ventil latica između njih nužno fiksiran, koji je instaliran na dovodnom cjevovodu. U tom je slučaju glavno opterećenje kotla na kruto gorivo, a plinski kotao uključuje se kada je gorivo već izgorjelo i održava temperaturni režim;
- mogućnost ugradnje izmjenjivača topline za odvajanje zatvorenih i otvorenih krugova. Na svaki krug spojen je drugačiji tip kotla. Zadatak kotla na kruto gorivo je zagrijavanje sekundarnog kruga, uslijed čega temperatura rashladne tekućine može doseći 115 ° C. Shema rada je slična;
- treća opcija je upotreba tampon spremnika kako bi se održala temperatura rashladne tekućine. U ovom je slučaju kotao na kruto gorivo povezan prema standardnoj shemi, a upotreba plinskog kotla omogućuje radijatore grijanja u međuspremniku - to traje od 2 do 4 sata.


Kotlovi na kruto gorivo i električni
Električni kotao, kada je povezan u isti sustav s krutim gorivom, obavlja istu funkciju kao i plinski. Uključuje se nakon izgaranja drva za ogrjev i omogućuje vam automatizaciju postupka održavanja temperature u kući.
Također, takav sustav i prisutnost međuspremnika osiguravaju istovremeno dovod rashladne tekućine u radijatore i grijane podove.
Kada sljedeći dio drva za ogrjev izgori, senzor detektira pad temperature zraka u sobi i električni kotao je uključen.Da bi isključio pumpu kotla na kruto gorivo, sistemski uređaj opremljen je gornjim termostatom koji bilježi pad temperature u dovodnoj cijevi. Pri slijedećem paljenju nastavlja se postupak cirkulacije rashladne tekućine.


Zahtjevi za uporabu RCD-a
Zahtjevi za uporabu RCD-a u svrhe električne sigurnosti regulirani su PUE-om, poglavlja 1.7, 6.1, 7.1. Struja isključenja RCD-a instaliranog u svrhe električne sigurnosti ne smije prelaziti 30 mA (upotrijebite RCD s strujom isključenja 10 mA i 30 mA).
Oznaka RCD za struju isključenja odabire se u skladu sa zahtjevima odredbe 7.1.83 PUE. Ukupna struja curenja mreže u normalnom načinu rada ne smije prelaziti 1/3 nazivne struje RCD-a. Budući da ne postoje podaci o strujama propuštanja, proračun propuštanja provodi se u skladu sa zahtjevima ovog stavka. Prilikom izračunavanja uzima se struja propuštanja električnog prijamnika kao 0,4 mA za svaki 1 A struje opterećenja, a struja propuštanja mreže iznosi 10 μA za svaki metar duljine kabela.
Zahtjevi za ugradnju RCD-a radi zaštite od požara regulirani su sljedećim dokumentima:
- PUE, točka 7.1.84 „Povećati razinu zaštite od požara u slučaju kratkog spoja na uzemljene dijelove, kada trenutna vrijednost nije dovoljna za aktiviranje maksimalne strujne zaštite, na ulazu u stan, individualnu kuću itd. preporuča se ugradnja RCD-a sa strujom odbijanja do 300 mA ";
- Savezni zakon od 22. srpnja 2008. N 123-FZ "Tehnički propisi o zahtjevima zaštite od požara". Članak 82., dio 4. „Vodovi za napajanje prostorija zgrada i građevina moraju imati zaštitne uređaje za isključivanje kako bi se spriječilo izbijanje požara. Pravila ugradnje i parametri uređaja preostale struje moraju uzeti u obzir zahtjeve za zaštitu od požara utvrđene u skladu s ovim Saveznim zakonom. "
U skladu s tim zahtjevima, na ulazu u stan instaliran je RCD sa strujom aktiviranja od 100 mA ili 300 mA. Takav RCD naziva se protupožarnim uređajem.
Ako izračun pokaže da ukupna struja propuštanja ploče stana ne prelazi 10 mA, tada možete uštedjeti novac i na ulaz u stan možete instalirati RCD s radnom strujom od 30 mA. Ovaj RCD će djelovati kao "vatrogasni" RCD i RCD koji se koriste u svrhe električne sigurnosti.
Inače je na ulazu u stan instaliran "protupožarni" RCD sa strujom aktiviranja od 100 mA ili 300 mA, a na izlaznim vodovima (gdje je instalacija instaliran RCD s strujom za aktiviranje od 10 mA ili 30 mA) RCD-a potreban je u svrhu električne sigurnosti).
Na kojoj visini treba postaviti utičnicu.
Određivanje mjesta izlaza mnogo je teže nego u slučaju prekidača. Prema takozvanom "europskom standardu" utičnice trebaju biti instalirane na visini od 30 centimetara od razine poda. Ova visina ugradnje omogućuje vam sakrivanje kabela za napajanje od električnih uređaja u kućanstvu.
No, s takvom instalacijom treba uzeti u obzir činjenicu postoje li u obitelji starije osobe. Napokon, da bi koristili utičnicu, morat će se sagnuti. Za mlade neće predstavljati probleme, ali za starije će biti teško. Bolje je tada utičnicu instalirati malo više, na razini od 40-50 centimetara od poda.
Niska ugradnja utičnica može biti opasna ako je u kući mala djeca. Ali ovaj se problem lako može riješiti pomoću uobičajenih utikača u utičnicama. Ili instalirajte utičnice s posebnom tajnom.
A za potpuno povjerenje, također ih spojite putem uređaja za preostalu struju (RCD).
U slučaju da će utičnica stajati blizu vaše radne površine, tada svaki put kada se sagnete kako biste uključili punjač s prijenosnog računala ili telefona, ili nečeg drugog ondje, neće biti vrlo povoljno. Savjetovao bih vam da napravite utičnicu 10-15 centimetara iznad razine stola. Tako će biti puno prikladnije koristiti ga.
Visina utičnica u kuhinji.
Posebnu pozornost treba obratiti na električno ožičenje kuhinje. Činjenica je da su često svi snažni električni uređaji smješteni u kuhinji.A može ih biti oko 10 (pećnica, mikrovalna pećnica, perilica posuđa, električni štednjak, bojler, perilica rublja i tako dalje).


Prilikom instaliranja električnih ožičenja u kuhinji, uvijek savjetujem polaganje zasebne žice s odvojenim strojem za svaku utičnicu. I sama utičnica treba biti instalirana na mjestu gdje će se nalaziti električni uređaji.
Naravno, takva instalacija zahtijeva veliku količinu žice i, kao rezultat toga, veliko financijsko ulaganje. Ali bolje je potrošiti novac jednom, a zatim dugo koristiti električnu ožičenje. Kako spojiti žice pomoću "petlje", a zatim imati hrpu problema.
Također, ako imate plinski kotao, tada je za njega u svakom slučaju potreban zaseban redak. Budući da je vrlo osjetljiv na prenaponske napone. Stoga, prilikom montiranja utičnice ispod kotla, morate uzeti u obzir činjenicu da ćete možda morati instalirati stabilizator napona.
Utičnica za ugradbene uređaje i perilicu rublja može se ugraditi na visini od 5-10 centimetara od poda. A može i viša, glavno je da je mogu doseći.


Za nape i osvjetljenje, točke napajanja mogu se napraviti iznad ormarića. Prekidač za pozadinsko osvjetljenje može se napraviti negdje sa strane, tako da ga je prikladno uključiti i isključiti.
Svi ostali mali uređaji obično se postavljaju na stol. To znači da utičnice moraju biti instalirane na razini ove tehnike. A ako nemate kuhinjsku jedinicu, ali ste je već naručili, tada definitivno trebate saznati njezinu visinu kako biste pravilno planirali mjesta svih prodajnih mjesta.
Također vam mogu savjetovati da napravite još nekoliko prodajnih mjesta u kuhinji. Odjednom ćete u budućnosti poželjeti kupiti neki drugi električni uređaj.
Pogledajte video isječak kako postaviti utičnice u kuhinju.
Još jedan video isječak.
Utičnice u kupaonici.
Kupaonica je soba s visokom razinom vlage. Stoga utičnice moraju biti postavljene na sigurnoj udaljenosti tako da na njih ne dođe voda. Kupaonica se uvjetno može podijeliti u tri zone. Pogledaj sliku.


U crvenoj zoni postoji velika mogućnost da voda dođe na izlaze. Stoga ih tamo nije moguće instalirati.
U žutoj zoni mogu se ugraditi bojler i lampa.
Ali u zelenoj zoni već možete instalirati utičnice, samo minimalna udaljenost od izvora vode trebala bi biti 60 centimetara ili više.
Spajanje plinskog kotla na dimnjak
Promjer dimnjaka mora biti jednak ili veći od promjera izlaza u uređaju.
U većini slučajeva promjer dimnjaka ovisi o snazi:
- 100 kW - 230 mm;
- 80 kW - 220 mm;
- 60 kW - 190 mm;
- 40 kW - 170 mm;
- 30 kW - 130 mm;
- 24 kW - 120 mm.
Obični dimnjaci vode se prema gore, 0,5 m iznad grebena kuće. Raspoređeni su unutar zida kuće i unutar kuće ili iza njenog zida. Na cijevi nisu dopuštena više od 3 zavoja. Prvi dio cijevi koji povezuje kotao s glavnim dimnjakom ne smije biti veći od 25 cm. Cijev mora imati zatvarajući otvor za čišćenje. Za kotlove s običnim dimnjacima i otvorenom komorom za izgaranje potreban je veliki protok zraka. Može se dobiti s otvorenim prozorom ili s odvojenom dovodnom cijevi.
Dimnjak mora biti izrađen od krovnog lima ili drugog materijala koji je otporan na kiseline. Valoviti kotao ne smije biti spojen na glavni dimnjak. Ne može se koristiti ni dimnjak od opeke.
Koaksijalni dimnjak mora biti postavljen vodoravno i izvučen u zid. Ova vrsta dimnjaka je cijev u cijevi. Trebao bi se odmaknuti od zida najmanje 0,5 m. Ako je kotao običan, tada bi dimnjak trebao imati blagi nagib prema ulici. Ako se uređaj kondenzira, tada bi nagib trebao biti prema samom uređaju.Dakle, kondenzat će se moći odvoditi u posebnu cijev, koju će trebati ispustiti u kanalizaciju. Maksimalna duljina koaksijalnih dimovoda je 5 m.
ZAHTJEV SOBE ZA UGRADNJU OPREME
Pažnja! Popis osnovnih zahtjeva za kotlovnicu:
- površina ne manja od 7 m2;
- prisutnost učinkovite dovodne ventilacije (odjeljak ventilacijskog kanala ovisi o snazi generatora topline - od 8 cm po 1 kW);
- mjesto za ugradnju kotla mora biti smješteno na udaljenosti od zidova, tako da između jedinice i zidova ostane razmak od najmanje 50 cm;
- podna obloga mora biti izrađena od negorivog materijala (beton, pločica), negorivi lim je postavljen ispred kamina, obično od čeličnog lima;
- promjer dimnjaka mora odgovarati parametrima izlaza dimnih plinova kotlovske jedinice;
- opskrba vodom i ugradnja električnih ožičenja provodi se uzimajući u obzir sve zahtjeve sigurnosti od požara.
Instalacija kotla i pripadajuće opreme treba se izvoditi u namjenskoj sobi ili u zasebnoj kotlovnici. Prostorija u kojoj je instaliran kotao mora biti opremljena pojedinačnim dimnjakom i ventilacijom. Prirodna ventilacija trebala bi osigurati tri puta izmjenu zraka u roku od jednog sata, isključujući zrak potreban za izgaranje. Prostorije u kojima je instaliran kotao moraju imati dovoljno prirodnog svjetla, a noću - električnu rasvjetu. Mjesta koja se iz tehničkih razloga ne mogu dobiti prirodnim svjetlom, moraju imati električno osvjetljenje. Osvjetljenje mora biti u skladu sa SNiP II-4-79 "Prirodno i umjetno osvjetljenje". Za kotlove čija duljina rešetke (servisirana s prednje strane (prednjeg zida)) nije veća od 1 m, udaljenost od prednje strane kotlova ili izbočenih dijelova peći do suprotnog zida kotlovnice mora biti najmanje 2 m Dopušteno je instalirati pumpe ispred kotla, kao i skladištiti opskrbu čvrstim gorivom za više od jedne promjene rada kotla. U tom slučaju širina slobodnih prolaza uz prednju stranu kotla trebala bi biti najmanje 1,5 m, a ugrađena oprema i gorivo ne bi trebali ometati održavanje peći i kotla. Širina prolaza između kotla i zida prostorije trebala bi biti najmanje 1 m. Širina prolaza između pojedinih izbočenih dijelova kotla, kao i između tih dijelova i isturenih dijelova zgrade, ljestava i ostale izbočene konstrukcije - ne manje od 0,7 m. bočne usluge, širina prolaza između kotla i zida prostorije mora biti najmanje 1,5 m. Širina tih prolaza, kao i širina između kotla i stražnji zid prostorije, mora biti najmanje 1 m. Prilikom postavljanja kotla u blizini zidova ili stupova, kotao ne smije biti blizu zida prostorije i udaljen od njega najmanje 70 mm. Podovi prostorije u kojoj je instaliran kotao moraju biti izrađeni od nezapaljivih materijala s glatkom i neklizajućom površinom; moraju biti poravnani i imati uređaje za odvod vode u kanalizaciju. Prilikom postavljanja kotla na drveni pod, ispod njega mora biti postavljen podni zaštitni zaslon ili ispred kotla mora biti postavljena vatrootporna brtva, ispred kotla postavljena je vatrena ploča.


Pravila za postavljanje cijevi i utičnica
Pri polaganju električnog kabela morate imati na umu da se zagrijava od struja, a obližnji grijač zagrijava i okolni zrak. Stoga je bolje uopće izbjegavati polaganje žica u blizini cijevi za plin i grijanje. Ali ako ne uspije, treba imati na umu da su norme PUE (pravila za električne instalacije) regulirane da temperatura zraka u takvim slučajevima ne smije prelaziti + 25˚S, dakle, kako bi se udovoljilo protupožarnoj sigurnosti pravila, udaljenost od kabela i žica do cijevi za grijanje trebala bi biti najmanje 100 mm, a do plinskih cijevi - 400 mm. Prilikom prelaska žica s vrućim cjevovodima, udaljenost između njih mora biti najmanje 50 mm, a s plinovodima - najmanje 100 mm.
Prekidač, utičnica iz plinske cijevi mora se nalaziti na udaljenosti od najmanje 0,5 metra.Ovaj je zahtjev posljedica činjenice da u plinovodu postoji zapaljivi plin, au nuždi će i najmanja iskra iz utičnice ili prekidača izazvati nepopravljive probleme.
Izlaz blizu plinske cijevi može uzrokovati hitne slučajeve, jer je struja u blizini zapaljivog plina.
Spajanje napona i presjeka kabela
Postoji izravna veza između snage povezane električne opreme i presjeka koji se koristi za napajanje vodiča (kabela ili žica).
Bilješka: Govoreći o presjeku kabela, govorimo o presjeku jezgri kabela uključenih u njegovu strukturu.
Bit ove povezanosti je sljedeća. Svaki je vodič sposoban provoditi električnu struju do određene vrijednosti bez zagrijavanja. Što je veći presjek vodiča, to više struje može provesti.
Budući da postoji matematički odnos između trenutne jakosti i snage priključenog uređaja, odnosno matematički odnos između presjeka jezgri kabela i snage, u našem slučaju, električnog kotla za grijanje.
Ta se ovisnost naziva "odabir vodiča za grijanje" (PUE-6, poglavlje 1.3.). Ne trebate ništa brojati, možete koristiti PUE tablice.
Ovo je za žice


Ovo je za kabele


Korištenje tablica nije teško.
- Prema maksimalnoj snazi kotla, uzmite u obzir struju opterećenja (podijelite snagu s 220 ili 380 V);
- U tablici potražite struju opterećenja;
- Pogledajte dopušteni presjek vodiča;
- Ako je potrebno, zaokružite odjeljak.
Za provjeru koristimo tablicu 3 (pue 1.3.8).
- Kotao 10kW na 380 volti. Opteretite struju od 26,3 ampera (zaokružite na 27 ampera). Gledamo u stol. Potreban nam je kabel presjeka 2,5 sq. mm u bakru.
- Isti kotao za 220 volti. Struja opterećenja 45,5 ampera (46 ampera). Gledamo u stol. Potreban nam je kabel presjeka 6 sq. mm u bakru.
- Za kabele s aluminijskim vodičima trebate odabrati presjek vodiča jedan korak više nego za bakar, odnosno za kotao snage 10 kW trebaju vam 4 mm i 10 mm.
Trebam li uzemljiti plinski kotao za grijanje i zašto
- Slom automatizacije - kotlovi opremljeni elektroničkim mikroprocesorom osjetljivi su na sve napone napona u mreži. Kvar, automatizacija može i od statičkog napona. Plinski kotao bez uzemljenja neće dugo raditi. Zamjena ploče za automatizaciju koštat će približno polovicu cijene opreme kotla.
- Opasnost od eksplozije - Nagomilani statički napon jedan je od najčešćih uzroka požara u plinskoj opremi. Pozitivan učinak uzemljenja na rad kotla leži u činjenici da je u potpunosti spriječena pojava iskre koja dovodi do eksplozije u slučaju curenja plina.
PUE 1.7.103 specificira parametre i zahtjeve za spajanje opreme za grijanje. Prije izdavanja potvrde za provjeru uzemljenja plinskog kotla, inspektor će provjeriti je li ugradnja kruga u skladu s navedenim standardima.
Koja su pravila i propisi za ugradnju zidnog plinskog kotla
Ugradnja kotla za grijanje nije lak zadatak. Kotao se ne može nekako objesiti, jer sigurnost ljudi koji žive u kući često ovisi o tome koliko je ispravno postavljen zidni kotao. To je zbog činjenice da se instalacija ovog uređaja izvodi u strogom skladu s tehničkim zahtjevima i standardima usvojenim u Rusiji na zakonodavnoj razini.
Zato je postavljanje zidnog kotla vlastitim rukama izuzetno dugotrajan i težak postupak za početnike.


Spajanje grijanja na kotao koji radi na plin
Shema povezivanja dvokružnog kotla s akumulatorom / bojlerom.
Mjesto cijevi može se razlikovati. To će ovisiti o proizvođačima i modelima.
Ako je sustav grijanja već prije radio i trenutno će se zamijeniti samo kotao. morat ćete ispustiti rashladnu tekućinu iz sustava i isprati je nekoliko puta.Na zidovima radijatora i cijevi taloži se velika količina različitih soli, pa je potrebno sustav isprati.
Sustav grijanja može cirkulirati i antifriz i voda. U tehničkoj dokumentaciji svakako pročitajte je li moguće koristiti antifriz u odabranom modelu.
Ima smisla koristiti antifriz kao rashladnu tekućinu u sustavu grijanja kada se kotao uključuje samo povremeno. U tom se slučaju voda u cijevima može smrznuti, ali antifriz ne. Međutim, ako je korisnik stalno u kući i kotao se ne isključi tijekom mraza, tada se voda može koristiti kao nosač topline.
- Cirkulacijska pumpa (ako je potrebno).
- Kuglični ventil.
- Grubi filtar.
- Kuglični ventil.
- Američka veza.
Cirkulacijska pumpa uvijek se mora zaustaviti na povratnom vodu. Kuglasti ventili potrebni su kako bi se sustav lako odvojio bez ispuštanja rashladne tekućine i brzo uklonio filtar za čišćenje i održavanje. Za zaštitu izmjenjivača topline od začepljenja soli potreban je grubi filtar u sustavu grijanja. Treba ga postaviti neposredno ispred kotla, po mogućnosti na vodoravni dio s hvatačem prema dolje.
Dijagram spajanja tople vode na plinski dvokružni uređaj:
- Filtar za grubu vodu.
- Kuglični ventil.
- Magnetski filtar ili fini filter.
- Kuglični ventil.
- Američka veza.
Da bi se maksimalizirao vijek trajanja dodatnog izmjenjivača topline dvokružnog kotla i osigurala njegova zaštita od kamenca, na dovodnoj cijevi s hladnom vodom moraju se instalirati magnetski filtar i grubo čišćenje. Ako je posljednji filtar već prethodno instaliran, tada ga nije potrebno postavljati ispred kotla.
Svi priključci trebat će biti zapečaćeni kukom, posebnom vodovodnom pastom ili FUM trakom.
Proširenje kotlovnice


Vatrostalna opeka koristi se za pojedinačne produžne kotlove.
Kada u kući nije moguće izdvojiti zasebnu prostoriju za kotao, uređuje se produžetak za kotlovnicu. Postojeće norme koje određuju visinu stropova i ostale karakteristike prostorije jednake su kao i za pojedine sobe. Uz to se uzimaju u obzir sljedeći zahtjevi:
- kotlovnica je dopušteno pričvrstiti samo na glavni zid, prozori i vrata u njemu nalaze se na udaljenosti do jednog metra;
- materijali od kojih su izrađeni pomoćni zidovi (cigla, blokovi od šljake, itd.), prema tehničkim uvjetima, nisu zapaljivi, podnose intenzivno zagrijavanje 45 minuta;
- zidovi produžetka nisu povezani s glavnom zgradom, temelj je izrađen odvojeno.
Proširenje je obvezno registrirano uz dokumentarne dokaze o pravu na priključenje plinovoda. Bez službenih dokumenata i dopuštenja nitko nema pravo urediti kotao.
Zašto držati distancu
Kuhinja je najnapunjenije područje s električnim aparatima. Hladnjak, mikrovalna pećnica, ispušni sustav, perilica posuđa - ovo je mali dio kućanskih aparata, bez kojih je nemoguće zamisliti. Stoga bi sigurnost u ovom dijelu stana trebala biti na prvom mjestu. Opskrba električnom energijom, plinom i vodom korisni su izumi, ali u rukama hakera ili neodgovorne osobe uzrokuju požare, ozljede, nesreće. Da biste izbjegli takve probleme prilikom izrade dizajna kuhinje, morate pažljivo razmotriti sve detalje interijera, kao i pažljivo razmotriti mjesto utičnica u odnosu na plinsku cijev, ploču za kuhanje i uređaje za grijanje. O tome ovisi zdravlje, dobrobit, a ponekad i život neke osobe.
Minimalna udaljenost izlaza do cjevovoda ili plinovoda je 50 cm.
Je li moguće instalirati plinski kotao vlastitim rukama?
Pri projektiranju sustava grijanja treba uzeti u obzir zahtjeve plinskih usluga koje nameću kako na mjestu ugradnje zidnog plinskog kotla, tako i na sam postupak ugradnje.Ako su ispunjeni svi tehnički uvjeti i građevinski propisi, neki se radovi mogu obaviti ručno.


Fotografija 1: Puštanje u rad zidnog kotla od strane predstavnika plinske službe
Treba imati na umu da je dopušteno samo samostalno postavljanje zidnog kotla u pripremljenu sobu u skladu s projektom koji je razvila plinska služba. Priključak na plinovod i sve radove puštanja u rad moraju izvoditi certificirani stručnjaci koji imaju dozvolu za izvođenje ovih radova.
Također imajte na umu da svi proizvođači ne dopuštaju ugradnju plinskih kotlova vlastitim rukama. Mnoge velike tvrtke koje proizvode opremu za grijanje na plin, poput Boscha, Aristona, Viessmanna, poništavaju jamstvo za zidni kotao ako je instalaciju izvodio nekvalificirani zaposlenik.
Povratak na sadržaj















